Volkerakstraat 16
€ 625.000,- k.k.
Object
Key kenmerken
Beschrijving
In Rivierenwijk woon je in een buurt die steeds populairder wordt. Niet gek, want hier heb je alles wat het Utrechtse stadsleven aantrekkelijk maakt binnen handbereik. Volkerakstraat 16 is een ruime hoekwoning met verrassend veel mogelijkheden. Het huis steekt nét een beetje uit ten opzichte van de buren, waardoor je aan de zijkant extra ramen hebt. Dit geeft de woning een speels karakter en extra ruimtegevoel. Van de goed doordachte indeling tot de stijlvolle badkamer en de grote bijkeuken: dit is een huis waar je elke dag van geniet.
De woning
Dit is geen standaard gezinswoning. De benedenverdieping is ruim opgezet en biedt volop mogelijkheden om je interieur naar wens in te richten. Een grote eettafel voor gezellige etentjes, een knusse zithoek of juist een extra werkplek? Hier kan het allemaal. De moderne keuken is strak afgewerkt en heeft openslaande deuren naar de tuin. En dan die bijkeuken, dat is toch echt wel heel fijn. Bijna dorpse luxe. Ideaal voor je wasmachine, droger, maar ook voor een extra koel-vriescombinatie. Extra opbergruimte, zodat je huis altijd opgeruimd is.
Op de eerste verdieping vind je twee royale slaapkamers en een stijlvolle badkamer uit 2017. Een dubbele wastafel, strakke tegels en een inloopdouche geven de ruimte een luxe uitstraling. De tweede verdieping biedt nog een extra kamer, met een wastafelmeubel. In 2017 is het gehele huis gerenoveerd. Daarbij zijn de daken geïsoleerd en de platte daken vernieuwd, de wanden gestuukt, nieuwe kunststof kozijnen geplaatst met HR++ beglazing en een nieuwe CV-ketel geplaatst. Werkelijk alles is toen onder handen genomen. Hierdoor heeft het huis een C label gekregen. Fijn voor jou, je kunt hier dus zo intrekken.
De omgeving
Rivierenwijk is een van de meest geliefde wijken van Utrecht – en terecht. Hier woon je in een rustige, groene omgeving, dichtbij het water en met de stad om de hoek. De bereikbaarheid is top: binnen vijf minuten zit je op de snelweg (A12/A2/A27), met een kleine tien minuten fietsen sta je op Utrecht Centraal en met 5 minuten fietsen op Station Vaartsche Rijn.
Voor je dagelijkse boodschappen wandel je naar het Smaragdplein, waar je de PLUS, Lidl en banketbakkerij Wammes vindt. Wij zijn ook dol op de dipjes, verse kruiden en olijven van de turk. Op dinsdagochtend scoor je hier verse producten op de markt. De warme kibbeling blijft favoriet.
De buurt heeft een dorps karakter, met speciaalzaken en ambachtelijke winkels op loopafstand. Maar niet alleen het Smaragdplein is om de hoek. De Rijnlaan heeft veel speciaalzaken. Haal je verse brood en kaasjes bij Bij Kees, geniet van een koffie bij Ohøj of trakteer jezelf op het bekroonde schepijs of oliebollen van Lorenzo.
Voor een borrel of diner hoef je niet ver. Rotsoord is dé plek voor culinaire hotspots. Begin de avond met een drankje bij Op Zuid, proef Aziatische tapas bij LE:EN, of dineer met panoramisch uitzicht in de Watertoren.
Liever de natuur in? Het Beatrixpark ligt op loopafstand en je fietst zo naar Amelisweerd voor een lange wandeling langs de Kromme Rijn.
Indeling
Begane grond
Hal met een ruim toilet, een grote woonkamer met open keuken uit 2017 met inbouwapparatuur en openslaande deuren naar de tuin. Een ruime bijkeuken met witgoed aansluitingen en extra opbergruimte. De grote woonkamer en keuken hebben verschillende indelingsmogelijkheden. Het is bijzonder ruim
Eerste verdieping
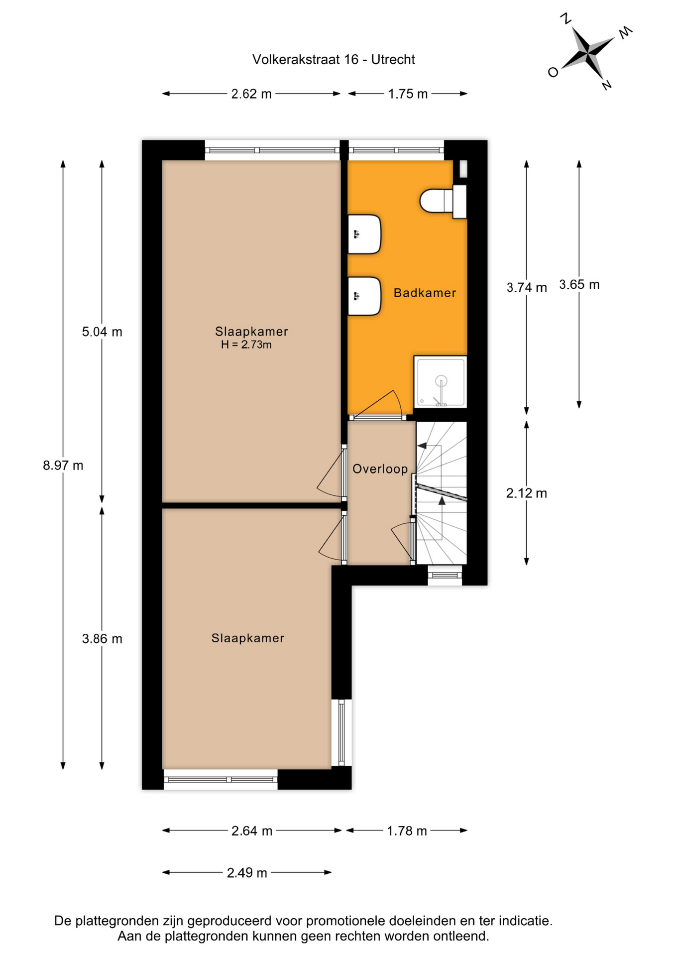
Twee grote slaapkamers waar ieder een tweepersoonsbed en een kast in past en een stijlvolle badkamer uit 2017 met dubbele wastafel, toilet en inloopdouche.
Tweede verdieping
Een ruime lichte slaapkamer met een eigen wastafel. Op deze verdieping is er ruimte voor een tweepersoonsbed. Hier kun je nog extra bergruimte creëren.
Tuin
Onderhoudsvriendelijke gezellige en zonnige stadstuin met een ruime berging.
Pluspunten van de woning
+ Ruime hoekwoning met extra ramen en speelse indeling
+ Grote bijkeuken, ideaal voor extra opslag
+ Geheel gerenoveerd in 2017 (degelijk uitgevoerd)
+ Perfecte locatie, dichtbij de stad én de natuur
Benieuwd naar de sfeer? Plan een bezichtiging en ervaar zelf hoe fijn het hier wonen is!






















































